Magnus

 

Details

Fokus: RAUMTAKT Head Office ZRH
Nummer: 1150.00
Disziplin: Innenarchitektur
Typologie: Arbeiten
Leistung: 3 Projektierung, 4 Ausschreibung, 5 Realisierung
Jahr: 2025
Standort: Magnusstrasse 21, 8004 Zürich
Kunde: RAUMTAKT GmbH
Fotograf: Studio Gataric Fotografie

Das Projekt

Raumtakt, 2014 im Basislager in Zürich Altstetten gegründet, hat sich in gut einem Jahrzehnt von einem jungen Büro mit geteilten Infrastrukturen zu einem eigenständigen Akteur an der Schnittstelle von Architektur, Innenraum und Raumstrategien entwickelt. Nach der Phase im Werkhof Binz, geprägt von robusten Arbeitsprozessen und experimentellen Formaten, markiert der Umzug 2026 in eine ehemalige Spenglerei im Zürcher Kreis 4 einen programmatischen Schritt: weg von der peripheren Produktionsadresse hin zu einem dichten urbanen Gefüge, in dem Arbeit, Alltag und Stadtraum direkt ineinandergreifen.

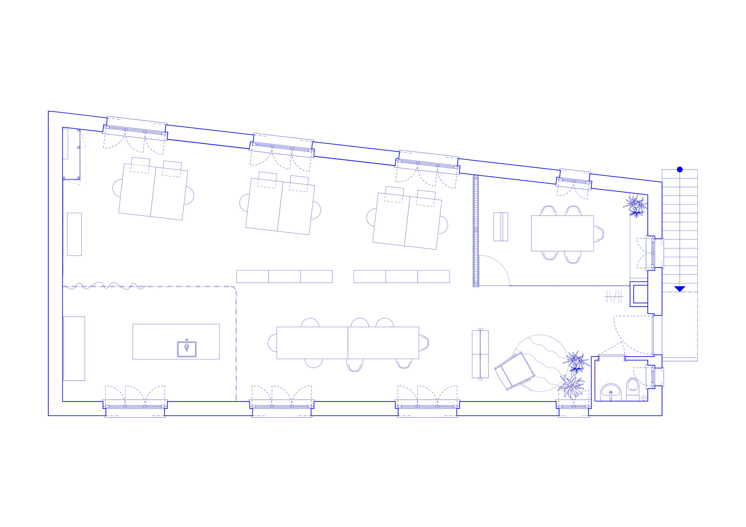
Die neue Bürofläche von rund 120 m² liegt im Obergeschoss eines Bestandsbaus mit industrieller Prägung. Der räumliche Charakter mit tiefen Grundrissen, tragenden Strukturen und sichtbaren Installationen wurde nicht kaschiert, sondern als Ausgangspunkt für die Transformation zum Studio genutzt. Anstelle eines radikalen Ausbaus stand die präzise Bearbeitung des Vorgefundenen im Vordergrund. Der Bestand wurde in Zonen gegliedert: offene Arbeitslandschaften, konzentrierte Projektbereiche, Flächen für Material- und Modellarbeit sowie eine gemeinsame Mitte für Besprechung, Austausch und Aneignung im Alltag.

Das Head Office versteht sich als räumliches Manifest der Arbeitsweise von Raumtakt. Flexible, nicht hierarchisierte Arbeitsplätze, mobile Möblierungen, im Detail sorgfältig ausgearbeitete Einbauten erlauben es, Projektteams und Nutzungsmodi schnell zu rekonfigurieren. Die Organisation des Grundrisses folgt weniger einer klassischen Bürotypologie als der Logik eines Ateliers, in dem analoge Modelle, Pläne und Materialproben ebenso selbstverständlich präsent sind wie digitale Arbeitsplätze. Der Raum dient der Produktion und zugleich der Kommunikation von Projekten nach innen und aussen.

Die Transformation der ehemaligen Spenglerei wurde in einem kompakten Zeitraum von nur einem Monat vom Entwurf über die Ausführungsplanung bis zum Umzug realisiert. Diese Verdichtung der Prozesse verlangte eine enge Verzahnung von Planung und handwerklicher Umsetzung. Sämtliche handwerklichen Arbeiten wurden von Studio Aftermidnight ausgeführt, mit dem Raumtakt in einem dialogischen Prozess Materialien, Oberflächen und Detaillierungen entwickelte. Der Ausbau versteht sich als präzise Intervention mit wenigen, klar gesetzten Elementen wie raumbildenden Einbauten, gezielt geführtem Licht und einer zurückhaltenden, auf Langlebigkeit angelegten Materialpalette, die den Bestand transformiert, ohne seine Geschichte zu überdecken.

Im lebendigen Kontext des Kreis 4, geprägt von Mischnutzungen, kleinteiligen Gewerbestrukturen und hoher Frequenz im öffentlichen Raum, tritt das neue Head Office nach aussen bewusst zurückhaltend auf. Die Schwelle zwischen Strasse und Studio ist als durchlässige Zone gedacht. Der Stadtraum wird visuell und atmosphärisch in die Arbeitswelt hineingezogen, während der Innenraum als Filter und Resonanzkörper des urbanen Umfelds wirkt. Seit Juni 2026 arbeitet Raumtakt hier in einem Setting, das die eigene Praxis räumlich spiegelt: wandelbar, prozesshaft und eng mit seinem städtischen Kontext verwoben, ein Atelier, das den kreativen Prozess nicht nur beherbergt, sondern täglich neu anregt.

 

Weitere Projekte

Zurück
Zurück

Friesenberg

Weiter
Weiter

Monami